


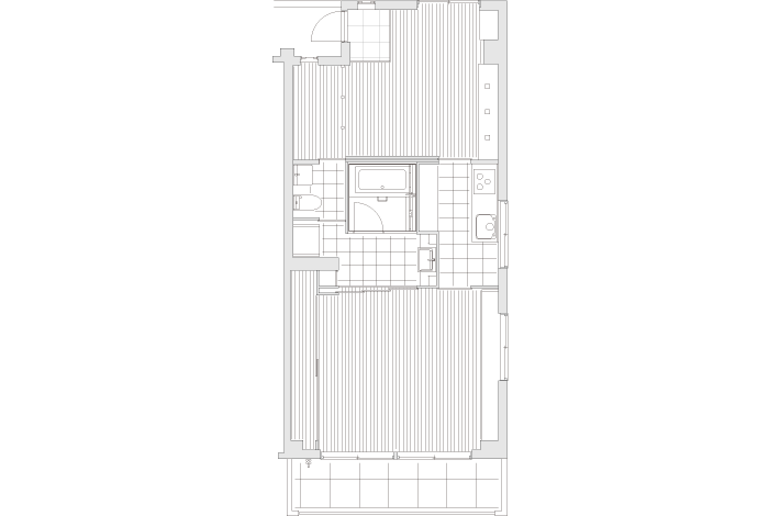
部屋の中心を水周りで区切ったONとOFFの切り替えが楽しい部屋。
あらゆる箇所にLAN配線を仕込んでホームサーバーやネットライフを支援



| 所在地 | 名古屋市名東区 | 間取り | 1DK |
|---|---|---|---|
| 専有面積 | 約56平米 | 築年数 | 1979年8月竣工 |
| リノベ完成年月 | 2008年12月 | 更新料 | 無し |
| 賃料 | 100,000円 | 共益費 | 2,000円 |
| 敷金 | 2ヶ月 | 礼金 | 2ヶ月 |
| 備考 | 駐車場近隣 | ||
| 主な設備 |
システムキッチン、録画機能付きTVドアホン、追い炊き、浴室暖房、ウォシュレット、一部家具付き、照明、 ベランダ水栓、LAN配線、ペアガラスサッシ、オスモオイル仕上げ無垢フローリング、他 |
||
| 仕様 | 【012D0812A-5】 ディンクスSOHO+2WAY | ||

画像をクリックすると拡大します。
※ご注意 神田ヴィレッジの不動産情報やブログでの紹介にのみご利用いただけます。
Copyright©2009 KandAsystem . All Rights Reserved.