


キッチンや水周りを一つの場所にコンパクトにまとめて、可能な限り生活スペースを大きくとった部屋です。
特徴は全面が真っさらな白い壁面とその対面にあたる階段側の明るいグリーンの壁。
北欧テイストの活き活きとした天然カラーが毎日の元気を分けてくれます。



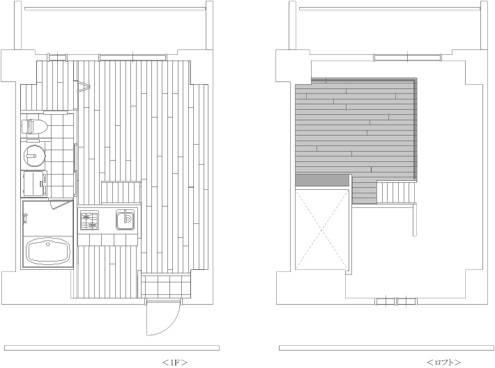
| 所在地 | 名古屋市中川区 | 間取り | 1R+ロフト |
|---|---|---|---|
| 専有面積 | 1R/約29.52㎡ ロフト/約9.67㎡ | 築年数 | 2011年4月竣工 |
| 賃料 | 80,000円 | 共益費 | 7,000円 |
| 敷金 | 2ヶ月 | 礼金 | 2ヶ月 |
| 備考 | 駐車場近隣 10,000円~13,500円(保証金等込み) | ||
| 主な設備 |
システムキッチン・オートロック(ピッキング対応錠)・洗浄機能付便座・エアコン・シーリングファン・照明器具・宅配BOX 独立洗面台・マルチメディアコンセント・南西窓ペアLow-Eガラス(西面のみUVカットペアLow-Eガラス)・インターネット回線 エコジョーズ給湯 |
||
| 仕様 | オリジナルデザイン・木質ロフト組み・無垢材フローリング(木部/無公害塗料オスモオイル仕上げ)・塗装壁・一部家具小物付 | ||

画像をクリックすると拡大します。
Copyright©2009 KandAsystem . All Rights Reserved.