


シンプルナチュラルカラーが基調の清潔感のある空間。
色調がほぼ単色なので、小物一つ、アイディア次第で部屋の印象を変えることができます。
クロークは棚板を移動させれば出入口を変えたり間仕切りをつけたりと、使う人のライフスタイルに合わせた収納スペースを作ることができます。
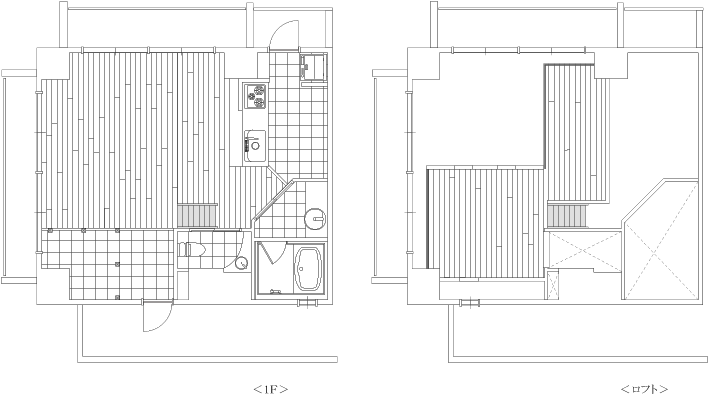
ロフトからの眺望は展望台に上ったような開放感があります。



| 所在地 | 名古屋市中川区 | 間取り | 1R+ロフト |
|---|---|---|---|
| 専有面積 | 1R/約44.28㎡ ロフト/約13.25㎡ | 築年数 | 2011年4月竣工 |
| 賃料 | 125,000円 | 共益費 | 9,000円 |
| 敷金 | 2ヶ月 | 礼金 | 2ヶ月 |
| 備考 | 駐車場近隣 10,000円~13,500円(保証金等込み) | ||
| 主な設備 |
システムキッチン・オートロック(ピッキング対応錠)・洗浄機能付便座・エアコン・シーリングファン・照明器具 宅配BOX・独立洗面台・マルチメディアコンセント・南西窓ペアLow-Eガラス(西面のみUVカットペアLow-Eガラス)・インターネット回線・エコジョーズ給湯・追い炊き機能・バス換気乾燥装置 |
||
| 仕様 | オリジナルデザイン・木質ロフト組み・無垢材フローリング(木部/無公害塗料オスモオイル仕上げ)・塗装壁・一部家具小物付 | ||

画像をクリックすると拡大します。
Copyright©2009 KandAsystem . All Rights Reserved.